Hi~欢迎来到陶石汇!
北京

请选择你所在的地区

  • 省份
  • 城市
  • 江西
  • 香港
  • 澳门
  • 台湾
  • 北京
  • 上海
  • 天津
  • 重庆
  • 河北
  • 山西
  • 河南
  • 辽宁
  • 吉林
  • 黑龙江
  • 内蒙古
  • 江苏
  • 山东
  • 安徽
  • 浙江
  • 福建
  • 湖北
  • 湖南
  • 广东
  • 广西
  • 四川
  • 海南
  • 贵州
  • 云南
  • 西藏
  • 陕西
  • 甘肃
  • 青海
  • 宁夏
  • 新疆
请先选择省份
安卓下载 苹果下载
全国统一服务热线 400-0658-029 133-0925-8589

首页 > 资讯 > 详情

石材案例 | 230㎡大平层艺术光感的美学宣言

2022-09-23



-

六朝古都,十朝都会,南京自古及今是江南富庶之地与文化中枢。长江尊邸,地处主城中芯的河西青奥板块,兼收繁市中的自然盛景和立基贵脉的价值传承。本案作为其中的顶级精装房改造项目,欲以当代的设计介入重新诠释纯净而奢适的人居理想和流贯着艺术光感的美学宣言。


01

简约的丰盈

Simple abundance



项目本身是一个全部顶面和部分墙面都布满毛细管的三恒房,设计上受到诸多限制。但约束条件是改造的难点更是创新的原点,寻求基于理性之上的感性演绎。在简单轮廓的空间整体中,入宅即映入眼帘的裸色主色调,缀以贴合大地系的原木色,还原源自生活的温柔肌理,这毫不费力的真实与高级感,为其注入法式美学的精神内核。
"假如你回望艺术史,几乎所有伟大的创作都与褶皱有关。——Gehry"

02

越流动,越自在

The more fluid, the more comfortable



简约优雅的电视墙反而凸显音响设备的高级质感。家具多以弧线型的包裹感诠释舒适与温馨的第一要义。壁炉则以沙发高度为参照,在石材的纹路背景下火光熠熠,立体了空间的纵深记忆,为“流动”姿态增添时光烟火的温度与诗意。

开放式厨房将岛台延伸至餐桌,形成一体式的就餐、咖啡、吧台、社交区域,去繁至简的设计激发轻快自然的都市时尚行为方式,也为包容和谐的家庭互动提供了更多可能性。

03

记忆的诗性

Poetic nature of memory



低饱和度的空间背景让自然光多次漫反射后愈发柔和,无主灯结构的间接光环境构筑温馨质感。大地色系搭配深深浅浅的木质系统,让卧室和书房弥漫着内在的沉浸气息,利用色块差异勾勒层次,自然而然形成视觉的缓冲与递进。

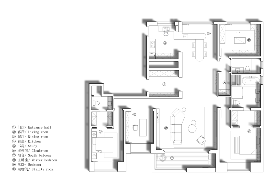
△项目平面图

项目名称|生于自然的精致主义项目地点|中国 南京项目面积|230㎡项目类型|精装私宅设计+全案托管完工时间|2022.8设计公司|The Deduction 演意设计设计总监|王璠设计团队|袁子昂、郎泽项目摄影|WM STUDIO


精选留言

点赞 531 写留言

0/100

友情链接
陶石汇 安卓
陶石汇 苹果
超级找客 安卓
超级找客 苹果