Hi~欢迎来到陶石汇!
北京

请选择你所在的地区

  • 省份
  • 城市
  • 江西
  • 香港
  • 澳门
  • 台湾
  • 北京
  • 上海
  • 天津
  • 重庆
  • 河北
  • 山西
  • 河南
  • 辽宁
  • 吉林
  • 黑龙江
  • 内蒙古
  • 江苏
  • 山东
  • 安徽
  • 浙江
  • 福建
  • 湖北
  • 湖南
  • 广东
  • 广西
  • 四川
  • 海南
  • 贵州
  • 云南
  • 西藏
  • 陕西
  • 甘肃
  • 青海
  • 宁夏
  • 新疆
请先选择省份
安卓下载 苹果下载
全国统一服务热线 400-0658-029 133-0925-8589

首页 > 资讯 > 详情

213平轻奢装修,壁炉最个性,瓷砖吧台+复古柜体,格调满满!

2022-08-24

这个公寓位于乌克兰面积为 213㎡是 Batsmanova Tamara 新作设计师将经典元素与极简主义碰撞
打造出艺术且现代的设计
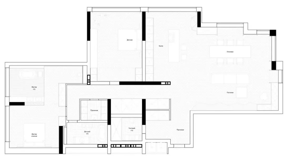
▲平面图
客、餐厅处在一个开放空间整体以白色、浅色和原木色搭配为主客厅无过多装饰元素经典的家具元素组成的恰到好处无主灯设计更是极简大气

流畅弧线造型的真火壁炉将金属与木质元素碰撞彰显了独特的个性

餐厅的片状吊灯现代感十足黑色餐桌与座椅格纹饰面同木质扶手的搭配呼应了空间中的复古感

小片瓷砖铺贴的吧台与复古的柜体丰富了厨房的层次感隐藏式厨房拥有极简的外观橱柜的设计让功能与颜值并存享受未来厨房的设计概念空间中的落地窗保证了室内优质的采光





--------------------------


请点分享!看完请在右下角点个赞。

精选留言

点赞 608 写留言

0/100

友情链接
陶石汇 安卓
陶石汇 苹果
超级找客 安卓
超级找客 苹果