Hi~欢迎来到陶石汇!
北京

请选择你所在的地区

  • 省份
  • 城市
  • 江西
  • 香港
  • 澳门
  • 台湾
  • 北京
  • 上海
  • 天津
  • 重庆
  • 河北
  • 山西
  • 河南
  • 辽宁
  • 吉林
  • 黑龙江
  • 内蒙古
  • 江苏
  • 山东
  • 安徽
  • 浙江
  • 福建
  • 湖北
  • 湖南
  • 广东
  • 广西
  • 四川
  • 海南
  • 贵州
  • 云南
  • 西藏
  • 陕西
  • 甘肃
  • 青海
  • 宁夏
  • 新疆
请先选择省份
安卓下载 苹果下载
全国统一服务热线 400-0658-029 133-0925-8589

首页 > 资讯 > 详情

石材案例 | 新中式美学风格空间,静享其美

2023-08-17



1
漏 景 | 自然雅澹

风雨连廊,不仅是建筑的雅趣,更让晴雨从容信步。与庭院连接,营造出庭院幽深,廊道回转的意境。



错落的格子框起景色,光影若现,映在斑驳陆离的的大理石台上,构成一幅诗意水墨画。

沙盘区
绿色如约而至,平添愉悦生机;日光映照,自成一处惬意的荫蔽,在室内静享其美。

2
圞 圈 | 清新雅致
深谈区
薄荷绿与纯净白搭配的桌椅,干净清新,就像是一种新的新视觉语言。
水吧

深谈区
上下联动的同心圆和轻柔飘逸的垂帘,自成一方天地,让光、影,私密,融合与共存变得轻而易举。黑质三脚架的独创,打破人们对原有装饰镜的认知,擒一束光,折射思绪万千
儿童区


3 染 | 辉光日新

一片光亮穿过天窗,摇曳生辉,让城市会客厅内外空间的界线变得暧昧,透漏的景致似实而虚、似虚而实,每每仰头都牵动灵魂。

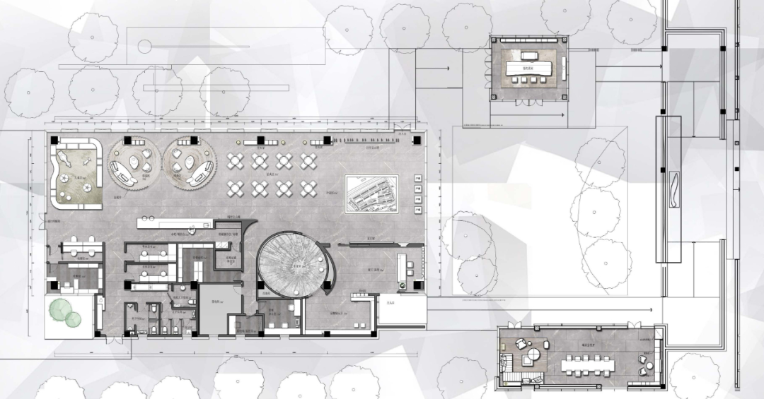
平面图



中而新 · 苏而新

140㎡ 样板间






运用苏式古典园林的造景手法及特点,以江南特有的淡雅气质相匹配,融入水浅葱、墨绿等色加以点缀,极力寻求自然与生活相呼应的新中式风格空间,在时间流转中延续着与生俱来的美。
玄关

绿随黑走,黑靠绿生。黑色质感大理石桌上,一束花、一匹马、一幅画,便成为美好生活的开端。
客厅


餐厅+厨房



主卧


次卧

儿童房


精选留言

点赞 538 写留言

0/100

友情链接
陶石汇 安卓
陶石汇 苹果
超级找客 安卓
超级找客 苹果